All in the Details: Fifth-Year Student Finishes Second in Preservation Competition

Date

Author

By Andrew Wyder
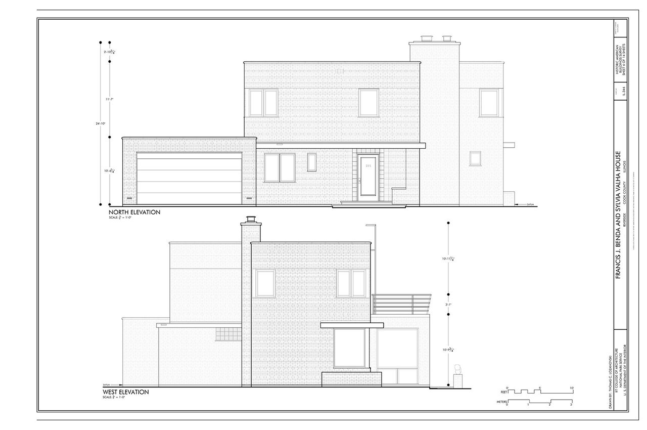
North and West Elevations Drawing

Not specifically out of the ordinary, a flyer on the wall of S. R. Crown Hall caught the eye of Thomas Lozanovski (B.ARCH. 5th Year). The piece of paper highlighted the results of a competition hosted by the National Park Service’s Heritage Documentation Programs, which was enough to push Lozanovski to learn more.

While doing so, he found another preservation competition hosted by the Heritage Documentation Programs—in conjunction with the Athenaeum of Philadelphia, the American Institute of Architects, and the Association for Preservation Technology—called the Charles E. Peterson Prize, which annually recognizes the best set of measured drawings prepared by students to Heritage Documentation Programs standards.

The Peterson Prize is named for Charles E. Peterson, one of the creators of the Historic American Building Survey (HABS) program, which was founded in 1933 as the United States’ first federal preservation program. HABS established methodologies that are now standard practice within the field such as the surveying and listing of historic sites and the creation of documentation for public benefit, according to the National Park Service. The Peterson Prize aims to increase awareness, knowledge, and appreciation of historic buildings, structures, and cultural landscapes throughout the U.S. while adding to the permanent collection of measured drawings at the Library of Congress.

“It’s an interest I’ve had in the back of my mind,” Lozanovski says of preservation work. “I’m all about new, cool designs, but there’s something nice about documenting something, even if it’s not threatened.”

Despite not having done any preservation work before, Lozanovski decided to enter the competition. And what started with a momentary glance turned into so much more: Lozanovski earned $5,000 as the second-place award winner in the 41st Peterson Prize competition.

Even more impressive: Lozanovski was the only competitor among this year’s Peterson Prize winners to complete the project with no other students. The first-place winner was a team of 10 students from Ball State University’s graduate program in historic preservation.

“The process for a HABS submission requires that the student painstakingly measure and draw the building—plans, sections, elevations, details—so it is an incredible accomplishment for Thomas since he was a one-person team,” says Professor of Architecture Michelangelo Sabatino, who served as Lozanovski’s mentor for the competition.

To participate in the Peterson Prize, students must choose a building that has not yet been recorded through measured drawings or must make a substantial contribution to the understanding of the significance of the building, structure, or cultural landscape. Five sets of drawings were selected as winners this year.

In addition to choosing a building, Lozanovski needed a faculty mentor. He connected with Sabatino, who writes about history and preservation. Sabatino assisted throughout the process, including helping him choose the Francis J. Benda and Sylvia Valha House in Riverside, Illinois, as the building that Lozanovski chose to create the set of drawings for.

A commuter student from Northwest Indiana, Lozanovski spent each weekend for two months—from May 2024 through July 2024—measuring every detail of the two-story, single-family home, which is listed on the National Register of Historic Places. They had the original drawings from the 1938 home’s architect, Winston Elting to assist with the work, which was beneficial because the competition required minute details such as tracking down a catalog from 1938 from the manufacturer of an aluminum handrail to get exact specifications, including the item’s model number.

“There were a lot of moments of extreme doubt during this project where I’d be leaving Riverside—it’s really late, and I'd call my mom or my fiancée, and be like, ‘I can’t do this. I’m done. It’s just too much,’” Lozanovski says. “To have all of those doubts but then to get it done and get second place in a national competition, I couldn't believe it.”